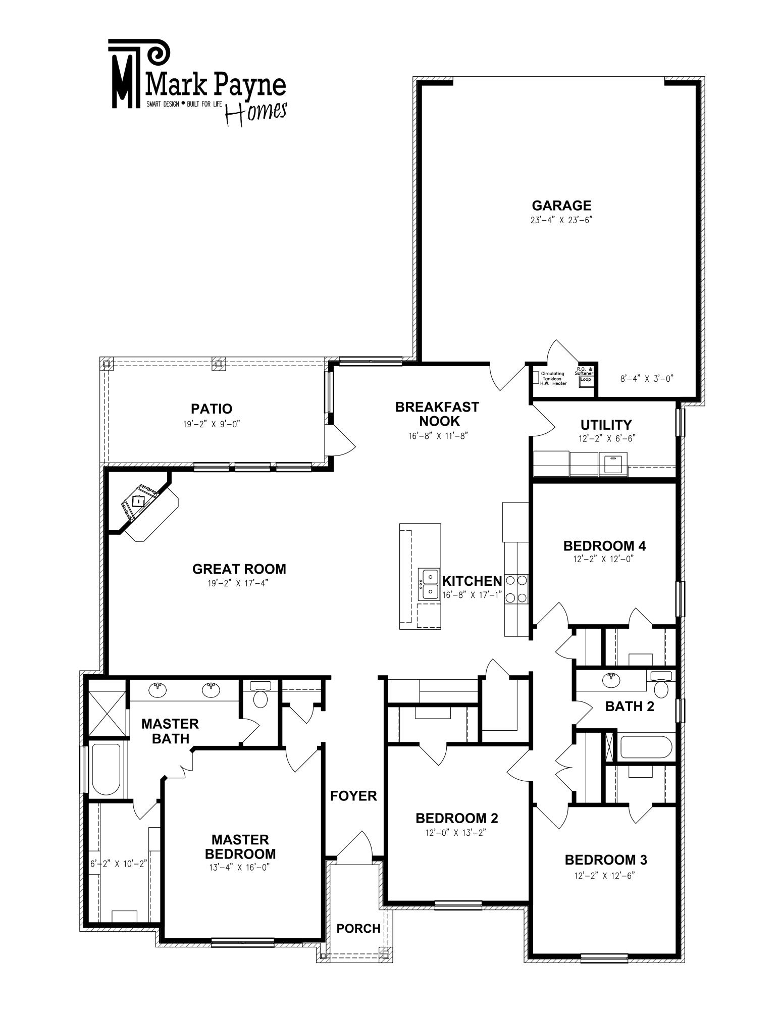
The Bristol offers 4 bedrooms, 2 baths and an abundant amount of storage with two linen closets, coat closet, walk in utility room and an oversized garage with a roomy workspace. This plan offers a great sized dining area to accommodate a large table, double ovens, an abundant amount of natural light, and great granite bar with lots of seating!